
Ferienhaus
Scharbeutz
Ferienhaus
Scharbeutz

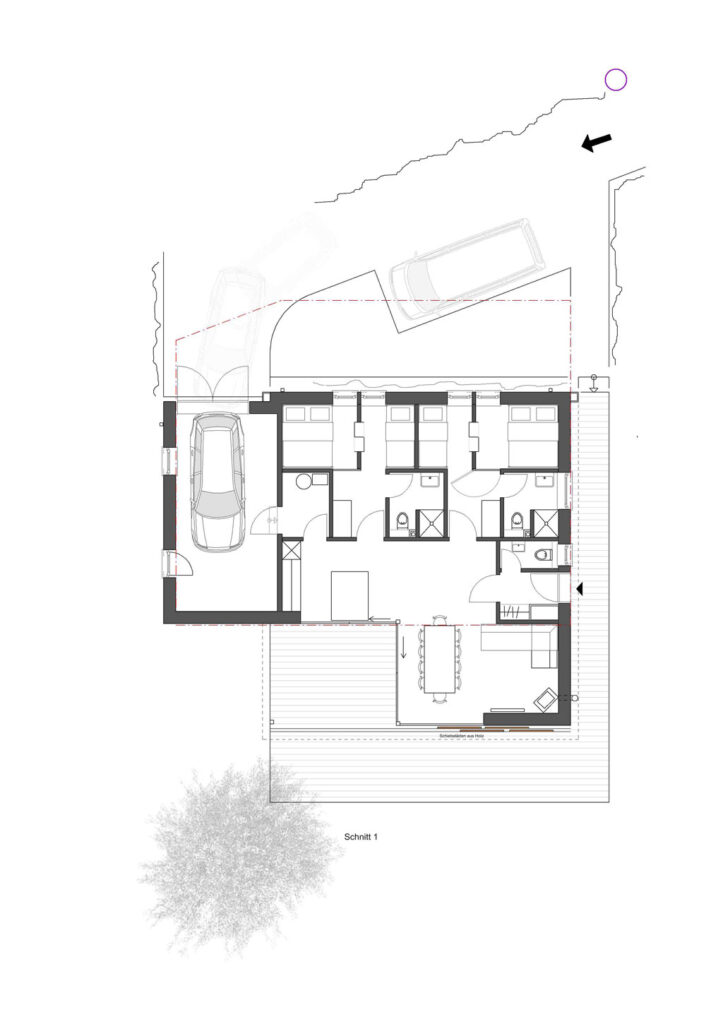
Wenn großzügiger Wohnraum im Inneren eines Wochenendhauses gebraucht wird, braucht man nicht zwingend viel Grundfläche.
Gut geplante Schlafplätze und Bäder lassen in diesem Neubau ausreichend Platz zwei Familien.
Projekt: Planung | Realisierung
Direktauftrag | LPH: 1 – 8
Standort: Scharbeutz
Jahr: 2012